markJPG.JPG (6179 bytes) e-name.JPG (11502 bytes)
c-name.JPG (13895 bytes)

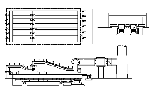
35T/HrBILLET REHEATING FURNACE

35t-wkb.GIF (5593 bytes)

REHEATING FURNACE TYPE,
HEATING CPACITY

FURNACE DIMENSIONS

OVERALL WIDTH¡G
7,780mm

WAKING BEAM TYPE
BILLET REHEATING FURNACE

OVERALL LENGTH¡G
16,000mm
INSIDE WIDTH¡G
6,800mm

35T/Hr BILLET
REHEATING FURNACE

EFFECTIVE LENGTH¡G
14,550mm
BILLETS TO BE HEATED¡G
120*120*6,000mm

menu.jpg (5819 bytes)

movingba.gif (11170 bytes)
Address: 24,Alley 28,Lane 851,Chung Shan Rd, Shenkang, Taichung,Taiwan.
Tel: 886-4-5629695
Fax: 886-4-5629697
E-Mail: auto96@ms13.hinet.net